【飞洋设计案例】—— 郴州金科郡农贸市场
项目名称:金科郡农贸市场市场面积:约3500平方米,位于建筑一层
项目地点:湖南省郴州市北湖区寒溪路
设计单位:飞洋建筑设计/飞洋市集设计研究
服务范围:市场调研、平面布局、效果方案设计、施工图设计
【一句话项目概括】成熟住宅小区商业裙房内新建的农贸市场
【项目概况】金科郡农贸市场位于湖南省郴州市寒溪路核心地段,紧邻成熟大型社区(金科郡小区)与小学,坐拥十字路口黄金位置,具备天然的高密度客流基础与绝佳交通可视性。飞洋建筑设计公司受委托进行整体规划设计,目标是将地理优势转化为核心竞争力,打造一个便捷、活力、智慧的社区生活中心。
【核心挑战】如何精准服务学生家长与社区居民两大核心客群?如何高效转化巨大的人流量?如何提升市场辨识度与体验感?
【优势分析】
1、紧挨成熟小区、毗邻小学,周边常住人口众多
2、市场入口紧临十字路口,交通便利、辨识度高

(如上图所示,项目位于寒溪陆路十字路口)
【难点分析】
1、户型不规则,剪力墙较多,导致室内空间几乎被一分为二
(如上图所示,室内中间的纵向区域几乎布满了结构复杂的剪力墙)
2、市场面积3500㎡纯若招生鲜摊位则招商压力较大
基于挖掘到的以上两大优势和两大痛点,我们将有针对性地开展调研和设计工作,并按照以下思路来放大优势和规避难点。
【设计策略(放大优势)】
1、立体动线,高效转化“十字路口”与“学校”流量:
2、主入口强化: 面向十字路口设计宽敞(≥5米)、带醒目雨棚的主入口,提升视觉吸引力和全天候通行便利性。
3、学生/家长动线: 开辟防滑安全步道直连小学入口,设置家长等候区(含座椅、菜价屏)及非机动车充电停车区(200+位)。
业态临机布局: 入口处规划“早餐快线”(粉面、鲜奶、预制菜),满足学生、上班族“即买即走”需求。
4、场景化布局,深挖“社区”与“家庭”需求: 设置“晚餐套餐区”(净菜+调料+食谱)、“学生营养专区”(有机菜+配菜建议),毗邻代加工厨房。
5、便民集成: 设置“社区共享客厅”(缝补、钥匙铺、公平秤、健康驿站),增强社区粘性。
|优势最大化|
成功将“十字路口辨识度”转化为便捷高效的入口体验,将“学校/社区人流”转化为精准消费场景。
|体验升级|
打造了安全、舒适、智慧化的购物环境,显著提升居民满意度与复购率。
|社区融合|
超越传统菜场功能,成为集购物、便民服务、社区互动于一体的生活枢纽。
|智慧标杆|
引入的智慧管理系统为商户赋能(数据指导经营)、为管理提效(远程监控、预警),树立区域农贸升级样板。
【设计策略(规避难点)】
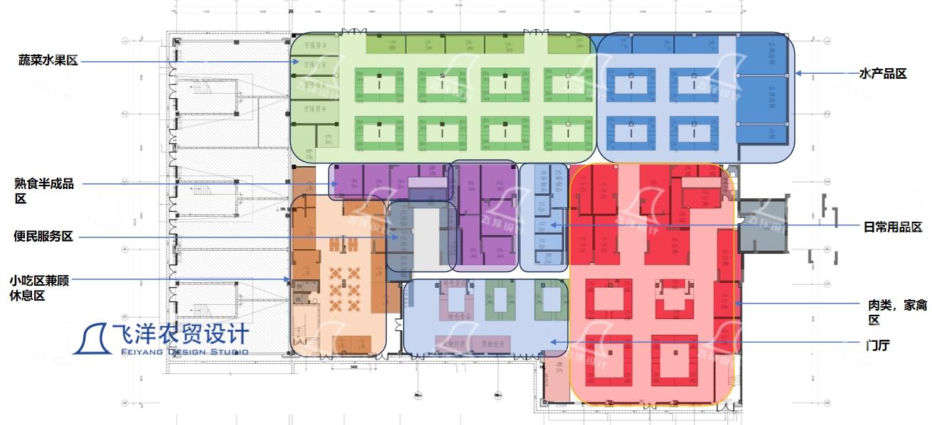
“内外左右环线”动线设计:对于无法强行打通的剪力墙,我们选择围绕核心剪力墙结构,规划“内环”(剪力墙内部围合区)与“外环”(相对敞开的区域)两条内外环线;再根据被剪力墙所分割的两侧打造“左环”(左半场)和“右环”(右半场)。
首先将左右两个半场的业态进行区分设置,分别设为生鲜区与餐饮区,既在一定程度上丰富了招商业态和消费层级,缓解招商压力,又同时让两个区域的物理分离显得更加自然,降低同品类购物穿行的可能性,同一个大类就在同一片完整区域内完成全部购物。
再次是内外环,在内环,也就是围合区域内,相对可达性较弱的位置,设置为配套商业及配套服务用房,例如便民区、办公区;在外环,也就是敞开区域,设置需求量更高、交易频率更频繁的业态,例如蔬菜水果等常规商业业态。
化解“招商压力”:复合业态,提升坪效
我们采用“1+N”业态组合: 核心(1): 集约化布局高频刚需生鲜摊位(蔬菜、肉、水产),确保基础功能高效覆盖(约占50%面积)。
增值(N): 重点引入高粘性、高附加值业态填补剩余空间。
有了以上基础思路,我们高效、准确地完成了平面规划和业态落位,接下来就是装修效果方案的设计。
金科郡农贸市场装修设计深度植根郴州地域文脉,创新融合三大核心元素:

自然文化: 运用本土竹木、石材及山水意象的曲线造型,营造清新、生态的购物氛围,呼应郴州绿色山水底蕴。
古镇文化: 提取当地古镇坡屋顶、青砖黛瓦的肌理与色彩,以现代手法演绎于空间界面与摊位造型,延续历史记忆。
戏曲文化: 巧妙融入地方戏曲的流线形态与服饰色彩(如点绛红、靛青),通过艺术灯具、标识系统点睛,增添灵动韵律。
整体以现代简约手法呈现,打造兼具地域辨识度、现代舒适感与文化亲和力的社区市集空间。
设计风格成品如下,尽情欣赏:





【总结】
金科郡农贸市场的设计,不仅巧妙化解了空间局限与招商压力,更将十字路口的黄金位置与社区人流优势发挥到极致。通过融合郴州自然山水、古镇肌理与戏曲韵律的现代演绎,我们成功打造了一个高效便捷、充满地域温度与活力的社区生活枢纽。这里,传统市集的烟火气与现代生活的舒适感完美共生,成为居民“家门口的美好生活”生动写照。
