那么今天杭州佰映将通过农贸市场建筑设计的排水设计及平面利用两方面给大家进行分享。

农贸市场建筑设计的排水设计
建筑设计没有预留排水沟,结构排水沟位置、宽度、深度不满足需求,让农贸市场排水设计无从入手,最终方案有二。一、条件允许的前提下,整层地面增加垫层,用以满足排水沟的深度要求,从而导致大幅度增加建设成本;二、条件不允许,极大程度简化排水设施,让农贸市场达不到使用功能,尤其是水产等业态排水不畅,导致市场环境极差。
农贸市场建筑设计的平面利用
建筑设计未充分考虑农贸市场其商业特性、动线特性,建筑内死角较多、深度较大,殊不知农贸市场不比其它商业场所,经营单元的平均面积不宜过大,最终导致平面利用率大大降低,整体价值受损。

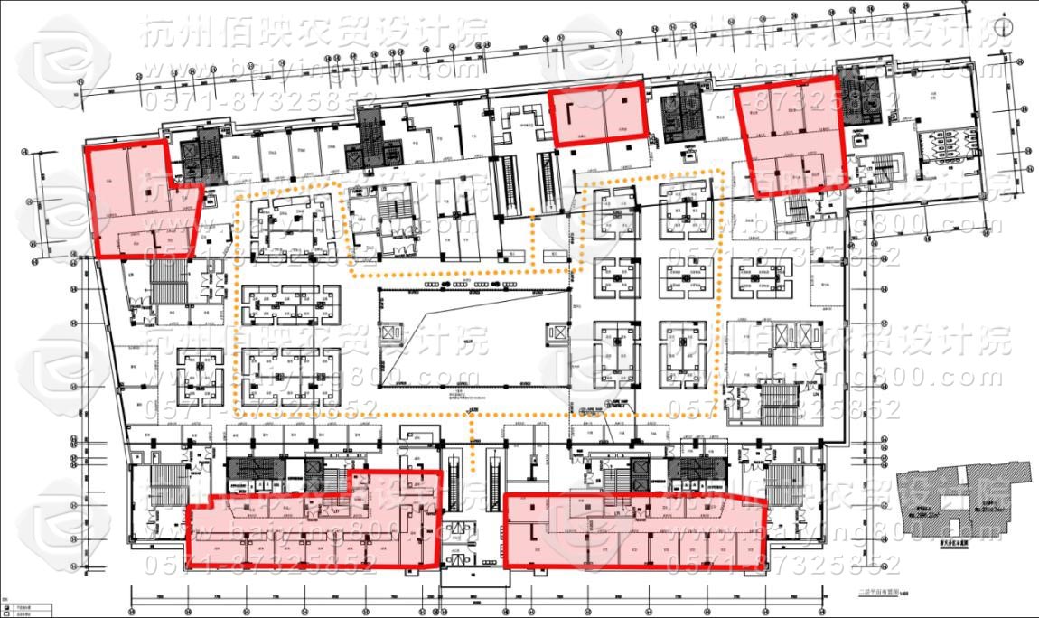
可以看到,在这个例子中,红色标注的营业区域远离购物主动线,且深度过深,原因是楼梯间、设备间等将平面分割开,形成了局部零散的几个区域。这样的平面布局设计并不理想,但在如此的建筑条件下实属无奈之举,只能从业态规划的角度去尽量吸引客流。这无疑是一次不成功的农贸市场建筑设计。
以上就是杭州佰映针对农贸市场建筑设计排水设计及平面利用的一些分享,供各位客户参考。
上一篇:农贸市场冻鲜猪肉区域管理规范 下一篇:农贸市场场内布局及柜台设置规范
